Descrizione

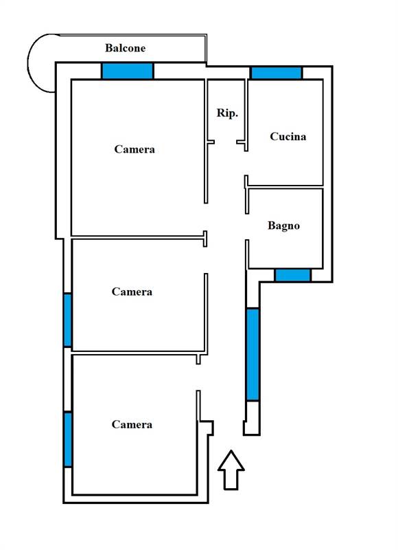
Via Chiana, ad.ze Corso Trieste, a due passi dallo storico ed elegante quartiere Coppedè, in una zona ricca di servizi e attività commerciali, ben collegata con i mezzi pubblici e a breve distanza dai parchi di Villa Ada e Villa Torlonia, proponiamo in vendita un trilocale sito al terzo piano di uno stabile signorile servito da ascensore, con accesso da Via Chiana e da Corso Trieste. L’appartamento è composto da un luminoso ingresso, soggiorno con balcone, due camere da letto, cucina abitabile, un bagno con finestra ed un ripostiglio. Come rifiniture interne l’immobile è dotato di porta blindata, pavimenti in graniglia e ceramica e infissi in alluminio. Possibilità di parcheggiare auto o motorino all’interno del cortile condominiale. MERCATO IMMOBILIARE, via Chiana n° 111, proponiamo valutazioni gratuite e senza impegno, appartamenti, locali commerciali, box, uffici ecc. , in vendita e locazione, chiamateci per un appuntamento – WhatsApp (lunedì – venerdì 9:00 – 13:00 / 14:00 – 18:00, sabato 9:00 – 13:00), e seguiteci sulla pagina Facebook Mercato Immobiliare Chiana e su Instagram @mercatoimmobiliarechiana. I dati si intendono corretti ma non garantiti. La presente non costituisce, in nessun caso, documento contrattuale


Caratteristiche principali

Stato Immobile
Da Ristrutturare
Grado
Signorile
Lati Liberi
3
Giardino
Cortile
Tipo Soggiorno
Soggiorno
Tipo Cucina
Abitabile
Riscaldamento
Autonomo
Tipo Riscaldam.
Caldaia
Tipo Impianto
Radiatori
Infissi
Alluminio
Pavim. Giorno
Graniglia
Pavim. Notte
Graniglia
Pavim. Cucina
Graniglia
Pavim. Bagno
Ceramica
Accessori: Ascensore, Cancello Elettrico, Porta Blindata, Ripostiglio

Richiedi informazioni

Invia
Cookie preference